Win More JobsSave Thousands Per Job
Automate your takeoffs, turn around bids in 2 days instead of 2 weeks, and get estimates built on your subs' actual pricing — so you bid more, win more, and protect your margins.

Bidi has been great to use — by far the most intuitive estimating software we've used in the last five years. From sending out bid packages to communicating with subs throughout the bidding process, everything is laid out cleanly and makes it very easy to stay on top of things.
Beyond the software itself, Bidi has connected us with subcontractors who have saved us tens of thousands of dollars across different scopes of work. The subs we've been connected with have been qualified and great to work with.
Per project saved by GCs through better bid coverage and leveled pricing.
A qualified network of contractors across the U.S., ready to bid on your jobs.
From plan upload to leveled sub bids in 2 days — so you can bid more jobs and win more of them.
Don't Let Manual Estimating Eat Your Profit
Full-time estimators cost $100K+/year and still miss details. Poor bid coverage can cost you $20K per job. Bidi eliminates these overheads.
Manual Plan Analysis
Spending hours reviewing details that AI handles in seconds.
Expensive Overhead
Hiring full-time estimators is costly. AI does the same work for a fraction of the price.
Low Bid Coverage
Relying on a small pool of subs leads to uncompetitive pricing and higher project costs.
Comparison Fatigue
Manual bid leveling is slow and error-prone, leading to thousands in missed savings per job.
Stop losing money to inefficiency. See how BIDI fixes it.
How BIDI Works
Five automated steps from plan upload to bid delivery
Upload Your Plans
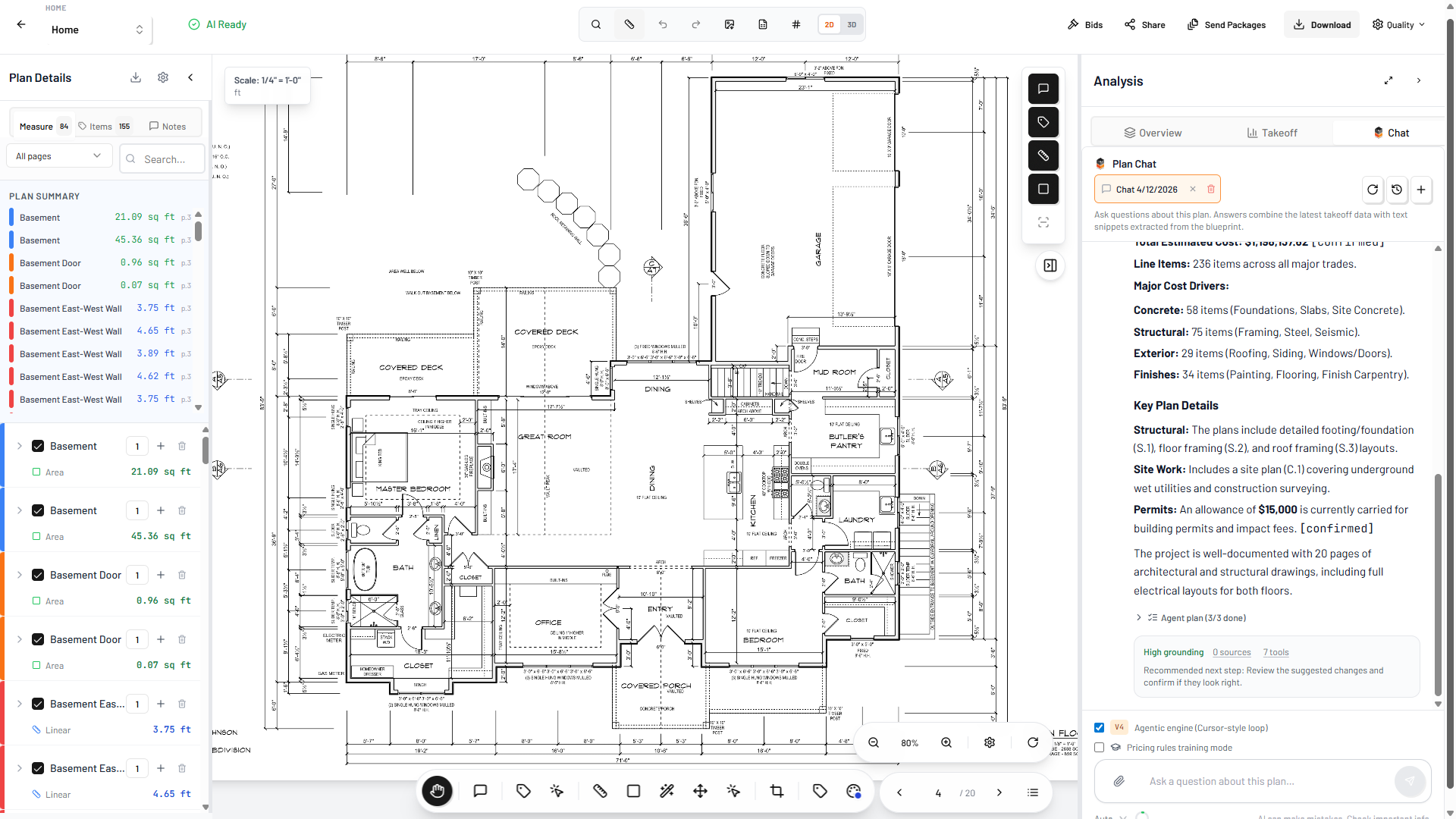
Upload construction plans and our AI instantly extracts materials, labor requirements, and generates cost estimates
AI Analysis & Takeoff
Automated takeoff and estimates tuned to your subcontractors' pricing. Our AI spots missing details and produces a comprehensive, accurate estimate, like a custom AI bidder for your team
Automatic Sub Outreach
We contact qualified subcontractors from your network and ours, sending complete job details automatically
Complete Bid Management
We handle all communications (email, text, phone) going back and forth until bids cover everything needed
Leveled Bids Delivered
Receive organized, comparable bids with AI-powered analysis to help you make informed decisions quickly
The BIDI Difference
Generic estimates lose money. Bidi trains a custom AI model on your subs' actual bid history — so your estimates reflect what your specific subs charge, not a national database that could be 20–40% off.
Local Pricing
Zip-code specific data
Product Types
Customized by category
Sub History
Your subs' actual bids
Tailored Estimate
Estimates calibrated to your subs' actual bid history — not a generic database. The more bids run through Bidi, the sharper your model gets.
See BIDI in Action
Watch automated takeoffs, estimates trained on your subs' pricing, and automated bid collection, so you bid faster and win more jobs.
Latest Insights
Stay updated with the latest trends and tips in construction estimating and bid management
Ready to Save $20K on Your Next Project?
Join General Contractors who save hours of time and thousands in project costs with BIDI's AI and nationwide contractor network.
Subcontractors: join our network for free








